トップページ > 高知市新本町1丁目 

販売物件情報

  • お気に入りリストを見る
  • 物件情報を印刷する
  • プリンタの設定で「背景を印刷する」と設定しないと「背景画像」が印刷されないことがあります。印刷の際には、必ず「背景を印刷する」設定にしてください。

中古一戸建て

高知市新本町1丁目 

画像

この物件のお支払い例

頭金0円/ボーナス払い0円

物件価格2,080万円

月々の支払い57,512

※上記支払例の借入条件:金利0.875%、借入総額2,080万円、借入期間35年

所在地・交通

所在地 高知市新本町1丁目 
最寄駅 土讃線 高知 徒歩分数 3分
最寄バス停 徒歩分数
小学校校区 高知市立江ノ口小学校 中学校校区 高知市立愛宕中学校

※学校区は住所から自動判定したものであり、保証できる情報ではございません。正確な学校区はお問い合わせ下さい。

お問い合わせフォームはこちら

「人型アイコン」を地図上にドラッグすることで『Google Street View』に切り替わります。

※地図上の「対象地」は「〒780-0062 高知県高知市新本町1丁目」の場所を指しています。実際の場所ではない場合がございます。詳しくはお問い合わせください。

お問い合わせフォームはこちら

物件概要

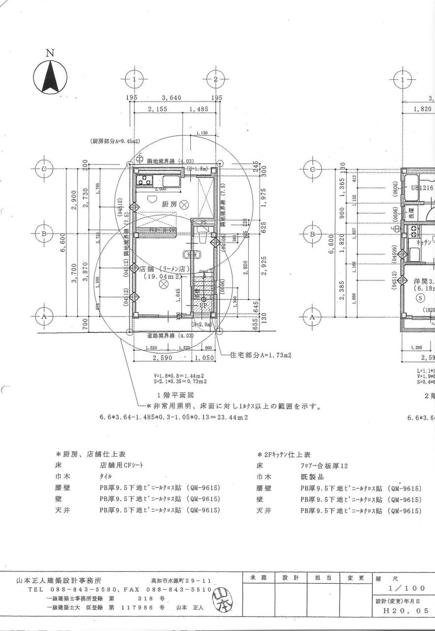
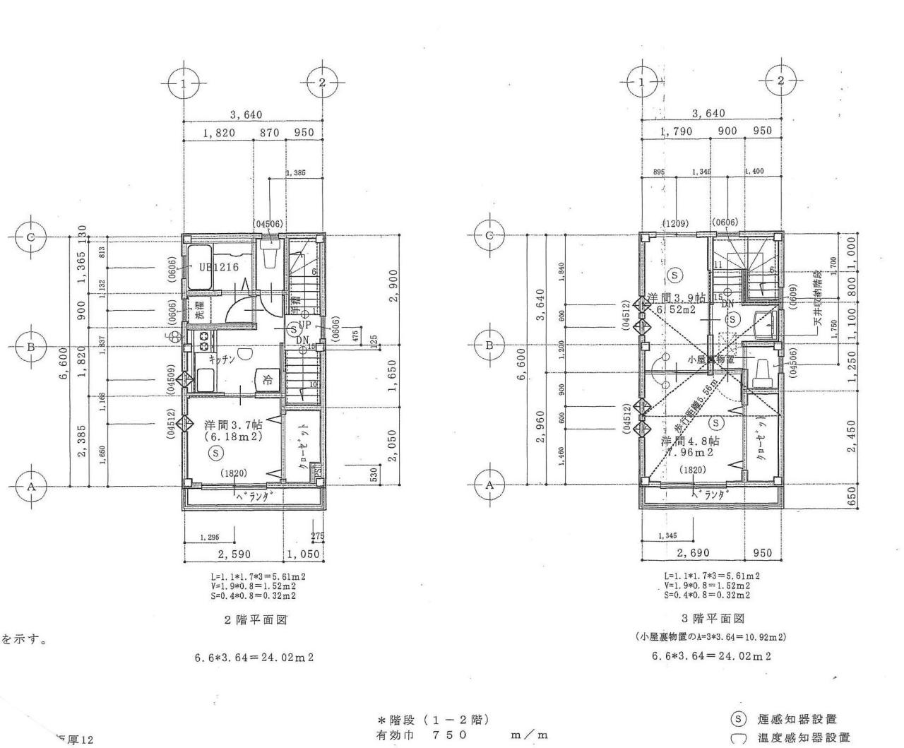
価格 2,080万円 種目 中古一戸建住宅
間取り 3K 間取り内訳 K3畳 洋3.7畳 洋3.9畳 洋4.8畳
土地面積 30.32㎡ 私道面積
建物面積 70.83㎡ 建物構造規模 鉄骨造 3階建
築年月(竣工月) 2008年12月 駐車場 無 
建ぺい率/容積率 80%/300% 都市計画 市街化区域
接道状況 南25m 公道 接面4m    一方道路
地目 宅地
土地権利 所有権 地勢 平坦
用途地域 近隣商業地域
現況 空家 取引態様 媒介
建築確認番号 第H20確認建築高知市00144号

取引条件等

引渡し 即時

その他

設備 トイレ2ヶ所、システムキッチン、都市ガス、上水道、下水道、[洗面台]
特徴
諸条件・相談
情報登録日 2025年6月11日 情報更新予定日 2026年3月14日
物件番号 15769
最近見た物件

ページの先頭へ

不動産査定ならすまいステップ

Copyright(C) 中古住宅専門店イエ楽 All rights reserved.