香南市野市町みどり野4 2680万円
■内外装フルリノベーションプラン付きです。
■駐車場2から3台駐車可能です。
■外壁色、水回りグレードなど、打合せより変更可能です。

※外観イメージパース
【物件概要】
土地面積:203.71㎡
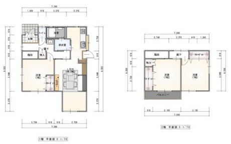
建物面積:90.12㎡
間取:4DK
築年月:1983年2月
構造:軽量鉄骨2階建
交通: 土佐くろしお鉄道阿佐線「のいち」歩28分
取引態様:媒介
【間取り】
【その他物件写真】
※内観イメージです。

※建具イメージです。

興味のある方、内見ご希望の方はイエ楽にご相談ください
〈リフォームイメージです〉




また、その他の物件情報、資金計画等についてもご相談承っております
お気軽にお越しください








